Tiêu chuẩn thiết kế văn phòng m2/người: Quy định mới & cách tối ưu diện tích hiệu quả
Trong quá trình thiết kế văn phòng, một trong những yếu tố quan trọng nhất là tiêu chuẩn thiết kế văn phòng m2/người. Đây không chỉ là con số kỹ thuật mà còn ảnh hưởng trực tiếp đến hiệu suất làm việc, trải nghiệm nhân viên và chi phí vận hành doanh nghiệp.
Vậy mỗi nhân sự cần bao nhiêu m2 là hợp lý? Có quy định cụ thể không? Làm sao để tối ưu diện tích mà vẫn đảm bảo công năng? Bài viết dưới đây sẽ giúp bạn hiểu rõ và áp dụng đúng chuẩn.
Tại sao doanh nghiệp cần tuân thủ tiêu chuẩn thiết kế diện tích văn phòng?
Việc áp dụng các thông số chuẩn hóa mang lại lợi ích đa chiều cho cả chủ doanh nghiệp và nhân viên:
-
Tối ưu hóa chi phí vận hành: Tránh tình trạng thuê diện tích quá rộng gây lãng phí hoặc quá hẹp làm giảm hiệu suất.
-
Đảm bảo sức khỏe học đường/văn phòng: Theo tiêu chuẩn thiết kế văn phòng làm việc, mật độ nhân sự quá cao sẽ làm giảm lượng oxy, tăng tiếng ồn và căng thẳng (stress).
-
Khả năng mở rộng: Một bản thiết kế có tính toán định mức sẽ giúp doanh nghiệp dễ dàng bổ sung nhân sự trong tương lai mà không phải thay đổi cấu trúc trụ sở.

Phân tích tiêu chuẩn thiết kế văn phòng m2/người theo 3 mức độ
Tùy vào ngân sách và định hướng thương hiệu, quý khách có thể lựa chọn một trong ba định mức diện tích phổ biến sau:
| Mức độ | Diện tích tiêu chuẩn | Đặc điểm áp dụng |
| Mức tiết kiệm | 3 - 4 m2/người | Phù hợp với startup, doanh nghiệp nhỏ hoặc các đơn vị làm việc linh hoạt (hybrid). |
| Mức trung bình | 5 - 6 m2/người | Tiêu chuẩn thiết kế văn phòng m2/người phổ biến nhất tại Việt Nam, cân bằng giữa chi phí và công năng. |
| Mức cao cấp | 7 - 10 m2/người | Áp dụng cho văn phòng hạng A, các đơn vị cần không gian sáng tạo cao hoặc sự yên tĩnh tuyệt đối. |
Cách tính diện tích văn phòng theo số lượng nhân sự
Công thức đơn giản:
Tổng diện tích = Số nhân sự × m2/người + diện tích phụ trợ
Ví dụ thực tế
Doanh nghiệp 20 người:
- Chọn 4 m2/người
→ 20 × 4 = 80 m2
- Khu họp, pantry → tổng ~100–120 m2
Tiêu chuẩn thiết kế diện tích theo tính chất công việc
Mỗi vị trí nhân sự có đặc thù công việc khác nhau, do đó diện tích chiếm dụng cũng cần được phân bổ tương xứng:
Nhân viên cố định (Fixed Worker)
Đây là nhóm nhân sự làm việc tại bàn trên 60% thời gian trong ngày (kế toán, hành chính, IT). Tiêu chuẩn thiết kế nội thất văn phòng cho nhóm này thường là 4.5 m2/người. Diện tích này đảm bảo đủ chỗ cho bàn làm việc, ghế xoay và hộc tủ tài liệu cá nhân.
Nhân viên linh hoạt (Flexible Worker)
Nhóm nhân sự thường xuyên ra ngoài (sales, account, quản lý dự án). Định mức thường là 3.0 m2/người. Doanh nghiệp có thể áp dụng mô hình "Hot desking" (chỗ ngồi không cố định) để tiết kiệm không gian.
Nhân viên lưu động (Mobile Worker)
Nhóm nhân sự chỉ ghé văn phòng để họp hoặc xử lý giấy tờ nhanh (tư vấn viên, kỹ sư hiện trường). Diện tích đề xuất chỉ khoảng 1.5 m2/người.
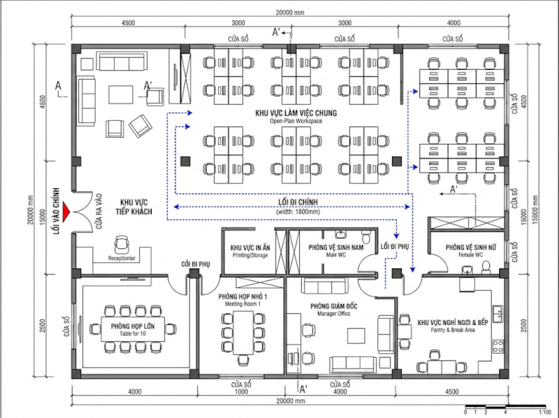
Tiêu chuẩn thiết kế trụ sở văn phòng làm việc cho các khu vực chức năng
Một tiêu chuẩn thiết kế trụ sở văn phòng làm việc chuyên nghiệp không thể thiếu các khu vực bổ trợ. Việc phân bổ diện tích cho các khu vực này thường chiếm khoảng 30-40% tổng diện tích mặt sàn.
-
Phòng lãnh đạo (CEO/Giám đốc): Diện tích tiêu chuẩn dao động từ 10 - 25 m2. Đây không chỉ là nơi làm việc mà còn là nơi tiếp khách VIP, thể hiện uy quyền của người đứng đầu.
-
Tiêu chuẩn diện tích phòng họp:
-
Phòng họp nhỏ (4-6 người): 8 - 10 m2.
-
Phòng họp trung bình (12-15 người): 20 - 30 m2.
-
Phòng họp lớn (trên 20 người): 40 - 100 m2.
-
-
Khu vực Pantry và giải trí: Chiếm khoảng 5-10% tổng diện tích, giúp nhân viên tái tạo sức lao động.
Các yếu tố kỹ thuật trong tiêu chuẩn thiết kế nội thất văn phòng
Khi hiện thực hóa bản vẽ, quý khách cần lưu ý các thông số nhân trắc học của nội thất để đảm bảo sự tương thích với diện tích mặt sàn:
- Tiêu chuẩn bàn ghế: Chiều cao bàn chuẩn thường là 750mm, khoảng cách từ mặt bàn đến ghế khoảng 280-320mm. Việc sử dụng bàn ghế module của Nội Thất The One giúp tiết kiệm tới 15% diện tích so với bàn rời thông thường.
- Hệ thống thông gió: Thể tích không gian trung bình cần đạt 10 - 11 m3/người. Văn phòng có trần càng cao thì cảm giác về diện tích m2/người càng rộng rãi hơn.
- Lối đi an toàn: Chiều rộng lối đi chính tối thiểu phải đạt 1.2m và lối đi phụ giữa các dãy bàn là 0.9m để đảm bảo an toàn phòng cháy chữa cháy.
Việc áp dụng tiêu chuẩn thiết kế văn phòng m2/người một cách linh hoạt chính là chìa khóa để kiến tạo nên một môi trường làm việc chuyên nghiệp. Doanh nghiệp nên tính toán dự phòng khoảng 10-20% diện tích cho kế hoạch tăng trưởng nhân sự trong 2 năm tới để tránh việc phải tái cấu trúc văn phòng quá sớm.
Nếu quý khách đang phân vân trong việc tính toán diện tích hoặc lựa chọn nội thất phù hợp với định mức m2 của văn phòng mình, hãy liên hệ ngay với đội ngũ kỹ sư của chúng tôi. Nội Thất The One cam kết mang đến giải pháp không gian tối ưu, hiện đại và chuẩn phong thủy nhất.
|
Mọi thông tin chi tiết về sản phẩm, vui lòng liên hệ:
|
Bình luận