Quy trình 7 bước thiết kế nội thất văn phòng chuyên nghiệp

Đánh giá:

Một văn phòng đẹp, chuyên nghiệp và hiệu quả không thể ra đời từ sự ngẫu hứng, tất cả đều bắt đầu từ một quy trình thiết kế nội thất văn phòng bài bản. Dù bạn đang xây dựng văn phòng mới hay cải tạo không gian cũ, việc nắm rõ từng bước trong quy trình sau đây sẽ giúp bạn kiểm soát chất lượng, tiến độ và tối ưu hóa từng đồng ngân sách đầu tư.

1. Vì sao phải xây dựng quy trình thiết kế nội thất văn phòng?

Dưới đây là 5 lý do cốt lõi vì sao một quy trình thiết kế bài bản là không thể thiếu:

  • Tối ưu hóa không gian và công năng: Quy trình thiết kế giúp tận dụng tối đa từng mét vuông diện tích, phân bổ hợp lý các khu vực chức năng từ phòng họp, khu làm việc chung đến pantry và khu lễ tân.
  • Xây dựng hình ảnh & thương hiệu doanh nghiệp: Văn phòng được thiết kế theo quy trình chuyên nghiệp sẽ phản ánh đúng văn hóa, đẳng cấp và câu chuyện thương hiệu của công ty, tạo ấn tượng mạnh mẽ và uy tín với khách hàng, đối tác ngay từ lần đầu bước vào.
  • Tiết kiệm thời gian và chi phí đáng kể: Các dự án không có quy trình rõ ràng thường phát sinh thêm 20 - 35% chi phí do thay đổi thiết kế giữa chừng, sai sót thi công và mua lại vật liệu. Quy trình bài bản giúp chủ đầu tư nắm bắt tiến độ từng giai đoạn, phê duyệt đúng điểm và kiểm soát ngân sách chặt chẽ từ đầu đến cuối.
  • Tăng hiệu suất làm việc của nhân viên: Một không gian được quy hoạch khoa học với ánh sáng đúng tiêu chuẩn (300 - 500 lux), nhiệt độ phù hợp (24 - 26°C), nội thất công thái học và các vùng chức năng rõ ràng có thể tăng năng suất lao động lên 20% và giảm 30% tỷ lệ nghỉ việc (nghiên cứu Leesman Index 2023).
  • Đảm bảo kỹ thuật và an toàn: Hệ thống điện, PCCC, tải trọng sàn khi bố trí nội thất nặng, thông gió và thoát hiểm,… đều cần được tính toán chính xác theo quy chuẩn kỹ thuật Việt Nam (QCVN 06:2022/BXD, TCVN 7114:2008).
Một quy trình thiết kế bài bản giúp tối ưu hóa công năng và thẩm mỹ cho không gian làm việc.
Một quy trình thiết kế bài bản giúp tối ưu hóa công năng và thẩm mỹ cho không gian làm việc.

2. Quy trình thiết kế nội thất văn phòng chuyên nghiệp 7 bước

Để biến những ý tưởng thành một không gian làm việc thực tế hoàn mỹ, các đơn vị thiết kế uy tín luôn áp dụng một hệ thống các bước làm việc logic và xuyên suốt. Dưới đây là 7 bước tiêu chuẩn trong quy trình thiết kế nội thất văn phòng:

2.1. Bước 1: Tiếp nhận thông tin về dự án thiết kế

Đây là giai đoạn quan trọng nhất bởi nếu thông tin đầu vào sai, mọi bước sau đó đều có thể đi lạc hướng. Sau bước 1, sẽ cần thống nhất 1 biên bản ghi nhận yêu cầu được cả hai bên ký xác nhận. Kiến trúc sư sẽ tiến hành trao đổi với chủ đầu tư để thu thập:

  • Thông tin cơ bản về doanh nghiệp: Lĩnh vực kinh doanh, số lượng nhân sự hiện tại và dự kiến sau 3 - 5 năm, cơ cấu phòng ban, văn hóa làm việc.
  • Phong cách thiết kế mong muốn: Hiện đại (Modern), Tối giản (Minimalist), Xanh (Biophilic), Công nghiệp (Industrial) hay Tân cổ điển (Neoclassic).
  • Ngân sách dự kiến: Phân bổ rõ ràng cho thiết kế, thi công, nội thất và các hạng mục kỹ thuật (điện, điều hòa, mạng).
  • Thời gian hoàn thành: Ngày khánh thành hoặc ngày chuyển vào sử dụng để lập kế hoạch ngược (backward planning).
  • Yêu cầu đặc thù: Phòng studio quay phim, kho bảo mật, phòng server, phòng thử đồ (với ngành thời trang),...
Buổi gặp gỡ đầu tiên (Discovery Meeting) đóng vai trò quyết định hướng đi của toàn bộ dự án.
Buổi gặp gỡ đầu tiên (Discovery Meeting) đóng vai trò quyết định hướng đi của toàn bộ dự án.

2.2. Bước 2: Khảo sát & lập hồ sơ hiện trạng mặt bằng

Đội ngũ kỹ thuật sẽ trực tiếp đến công trình để hoàn thiện hồ sơ hiện trạng chính xác đến từng centimet, làm nền tảng cho toàn bộ bản vẽ thiết kế:

  • Đo đạc tổng thể mặt bằng: Chiều dài, rộng, cao thông thủy, vị trí dầm, cột, gờ tường, hộp kỹ thuật.
  • Kiểm tra hệ thống kỹ thuật hiện có: Vị trí tủ điện, đường ống nước, cửa sổ, cửa đi, hệ thống điều hòa âm trần, sprinkler PCCC.
  • Ghi nhận hướng sáng và hướng gió: Xác định mặt nào nhiều ánh sáng tự nhiên nhất để bố trí khu làm việc ưu tiên.
  • Chụp ảnh và quay phim 360°: Tư liệu hóa 100% hiện trạng làm cơ sở tham chiếu trong suốt quá trình thiết kế và thi công.
  • Ghi nhận các bất thường: Sàn không bằng phẳng, trần cong, tường nghiêng, ống kỹ thuật cố định,… những yếu tố cần xử lý trong thiết kế.
Công tác khảo sát thực địa đảm bảo độ chính xác tuyệt đối cho các bản vẽ kỹ thuật sau này.
Công tác khảo sát thực địa đảm bảo độ chính xác tuyệt đối cho các bản vẽ kỹ thuật sau này.

2.3. Bước 3: Thảo luận phương án, đề xuất ý tưởng thiết kế (Concept)

Thay vì bắt tay vào vẽ chi tiết ngay (một sai lầm phổ biến của các đơn vị thiết kế thiếu kinh nghiệm) thì bước này tập trung vào việc định hướng phong cách chung của dự án thông qua Moodboard và Concept Design:

  • Moodboard phong cách: Tập hợp hình ảnh tham khảo thể hiện phong cách, bầu không khí và cảm giác mong muốn của không gian văn phòng.
  • Bảng màu sắc chủ đạo: Đề xuất 2 - 3 bộ màu phù hợp với định vị thương hiệu, kèm phân tích tỷ lệ ứng dụng (60-30-10).
  • Vật liệu và chất liệu định hướng: Gỗ, kính, kim loại, vải,… loại nào phù hợp với phong cách và ngân sách.
  • Ý tưởng điểm nhấn thị giác: Bức tường tại lễ tân, đèn nghệ thuật, cây xanh lớn, mural tường... yếu tố tạo dấu ấn riêng biệt.
  • Phân vùng chức năng sơ bộ: Phác thảo ban đầu để khách hàng hình dung cấu trúc tổng thể trước khi đi vào mặt bằng chi tiết.
Moodboard giúp chủ đầu tư hình dung rõ nét về
Moodboard giúp chủ đầu tư hình dung rõ nét về "hơi thở" và phong cách của văn phòng tương lai.

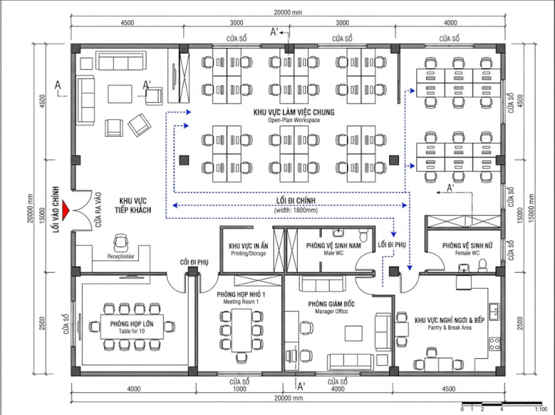
2.4. Bước 4: Thiết kế mặt bằng bố trí công năng nội thất (2D)

Đây là bước kỹ thuật quan trọng, nơi ý tưởng được chuyển hóa thành sơ đồ không gian cụ thể trên bản vẽ 2D hoàn chỉnh (sàn, trần, điện, cấp thoát nước nếu có), được kiến trúc sư và chủ đầu tư cùng ký duyệt:

  • Phân chia zoning chi tiết: Vị trí chính xác của lễ tân, khu làm việc theo phòng ban, phòng họp các cỡ, phòng giám đốc, pantry, toilet, kho.
  • Bố trí nội thất theo công năng: Số lượng và kích thước bàn làm việc, cách sắp xếp cluster, khoảng cách đi lại (tối thiểu 90cm cho lối phụ, 150cm cho lối chính).
  • Kiểm tra tiêu chuẩn PCCC: Đảm bảo lối thoát hiểm tối thiểu 120cm, khoảng cách từ bất kỳ điểm nào đến cửa thoát nạn ≤ 30m theo QCVN 06:2022/BXD.
  • Tính toán số lượng nhân sự tối đa: Theo tiêu chuẩn TCVN 9411:2012, tối thiểu 4,5m²/người (hot-desking) hoặc 8 - 12m²/người (truyền thống).
  • Bản vẽ trần và chiếu sáng: Vị trí đèn, loại đèn, hệ điều hòa, đầu sprinkler, camera an ninh... tất cả phải đồng bộ với bố cục mặt bằng.
Bản vẽ 2D thể hiện sự phân bổ không gian và luồng giao thông nội bộ một cách khoa học.
Bản vẽ 2D thể hiện sự phân bổ không gian và luồng giao thông nội bộ một cách khoa học.

2.5. Bước 5: Thiết kế phối cảnh 3D chi tiết

Bước này biến bản vẽ kỹ thuật thành hình ảnh không gian sống động, giúp chủ đầu tư "bước vào" văn phòng tương lai trước khi thi công bất kỳ viên gạch nào:

  • Dựng hình 3D: Render hình ảnh chất lượng cao với đầy đủ ánh sáng tự nhiên, ánh sáng nhân tạo, chất liệu bề mặt và màu sắc thực tế.
  • Góc nhìn đa chiều: Cung cấp 5 - 10 góc render cho từng không gian quan trọng (lễ tân, phòng họp, khu làm việc, phòng giám đốc) để chủ đầu tư có cái nhìn toàn diện.
  • Thể hiện chi tiết nội thất: Kiểu dáng, màu sắc từng món đồ (bàn, ghế, kệ, đèn, vách ngăn...) đúng như kế hoạch thi công thực tế.
  • Điều chỉnh linh hoạt theo phản hồi: Khách hàng có thể yêu cầu thay đổi màu sắc, vật liệu, kiểu dáng nội thất tại bước này với chi phí điều chỉnh tối thiểu.
  • Walkthrough 3D (tùy chọn): Video tham quan ảo 360° hoặc trải nghiệm VR (Virtual Reality) cho phép chủ đầu tư duyệt thiết kế như đang đứng trong không gian thật.
Phối cảnh 3D sống động giúp khách hàng trải nghiệm không gian thực tế trước khi thi công.
Phối cảnh 3D sống động giúp khách hàng trải nghiệm không gian thực tế trước khi thi công.

2.6. Bước 6: Triển khai hồ sơ kỹ thuật thi công văn phòng

Đây là bước "dịch ngôn ngữ thiết kế sang ngôn ngữ thi công", giúp bất kỳ đơn vị thi công uy tín nào cũng có thể thực hiện đúng thiết kế:

  • Bản vẽ chi tiết cấu tạo nội thất: Kích thước chính xác từng milimet, vật liệu cụ thể, phương pháp lắp đặt, xử lý góc cạnh và bề mặt cho từng món đồ nội thất custom.
  • Sơ đồ hệ thống điện chi tiết: Vị trí ổ cắm, công tắc, circuit breaker, đèn, đường cáp điện theo đúng TCVN 7447:2010 (hệ thống điện tòa nhà).
  • Sơ đồ mạng và viễn thông: Vị trí điểm mạng LAN, wifi access point, camera IP, hệ thống điện thoại IP, màn hình hội nghị.
  • Sơ đồ điều hòa không khí: Vị trí đầu cassette, đường ống dẫn môi chất, tủ trung tâm, đảm bảo nhiệt độ đồng đều theo TCVN 5687:2010.
  • Bảng dự toán vật liệu và nhân công: Bóc tách khối lượng chi tiết từng hạng mục, kèm đơn giá thị trường, công cụ quan trọng để chủ đầu tư đấu thầu và so sánh báo giá.
Hồ sơ kỹ thuật thi công chi tiết là
Hồ sơ kỹ thuật thi công chi tiết là "kim chỉ nam" cho đội ngũ thợ và xưởng sản xuất.

2.7. Bước 7: Bàn giao hồ sơ thiết kế cho khách hàng

Giai đoạn cuối hoàn tất quá trình thiết kế và mở ra giai đoạn thi công. Tuy nhiên, vai trò của đơn vị thiết kế không kết thúc ở đây:

  • Bàn giao bộ hồ sơ đầy đủ: Bản vẽ 2D, hình 3D, hồ sơ kỹ thuật, bảng dự toán chi tiết và các tài liệu kỹ thuật bổ sung theo định dạng CAD, PDF và hình ảnh độ phân giải cao.
  • Hỗ trợ đấu thầu thi công (nếu có): Các đơn vị thiết kế hỗ trợ chủ đầu tư trong quá trình mời thầu, đánh giá hồ sơ năng lực và báo giá từ các đơn vị thi công khác nhau.
  • Giám sát thiết kế: Kiến trúc sư chủ trì định kỳ kiểm tra công trường (tối thiểu 2 lần/tuần) để đảm bảo thi công đúng bản vẽ, đúng chất liệu và đúng tiêu chuẩn kỹ thuật.
  • Xử lý phát sinh kỹ thuật: Khi thi công gặp bất thường (ống nước ẩn, dầm không đúng vị trí...), kiến trúc sư đưa ra giải pháp thay thế kịp thời mà không ảnh hưởng đến thẩm mỹ và công năng.
  • Nghiệm thu và bàn giao công trình: Kiểm tra lần cuối theo checklist, chụp ảnh so sánh với bản 3D, bàn giao hướng dẫn sử dụng và bảo trì nội thất cho chủ đầu tư.
Công tác bàn giao hồ sơ đầy đủ đánh dấu sự chuyển giao từ giai đoạn thiết kế sang thi công thực tế.
Công tác bàn giao hồ sơ đầy đủ đánh dấu sự chuyển giao từ giai đoạn thiết kế sang thi công thực tế.

3. Các lưu ý quan trọng trong quy trình thiết kế nội thất văn phòng

Dù đã có một quy trình chuẩn, nhưng trong quá trình thực hiện, chủ doanh nghiệp và cả kiến trúc sư vẫn cần phải theo sát và lưu tâm đến một vài yếu tố then chốt. Dưới đây là những điểm cần đặc biệt chú ý để dự án thành công:

  • Xác định rõ nhu cầu và phong cách: Định hình phong cách (hiện đại, tối giản, biophilic...) TRƯỚC khi gặp kiến trúc sư. Chuẩn bị 10 - 15 hình ảnh tham khảo từ Pinterest/Behance để truyền đạt ý tưởng trực quan. Phong cách không phù hợp ngành nghề sẽ gây phản tác dụng về thương hiệu.
  • Tối ưu hóa công năng mặt bằng: Bố trí mặt bằng theo nguyên tắc: các phòng ban tương tác nhiều thì đặt gần nhau. Đảm bảo lối đi chính ≥ 150cm, lối phụ ≥ 90cm. Không đặt phòng họp ở vị trí nhộn nhịp và cần cách âm tốt (STC ≥ 45).
  • Tận dụng ánh sáng tự nhiên: Bố trí bàn làm việc song song với cửa sổ (không ngồi đối mặt trực tiếp để tránh lóa). Kết hợp rèm cản nắng và đèn LED 4000K bù sáng.
  • Kiểm soát âm thanh hiệu quả: Sử dụng vách kính 2 lớp (6+12+6mm) cho phòng họp và phòng giám đốc đạt STC ≥ 45. Bạn cũng có thể trải thảm tại khu vực cần yên tĩnh (giúp giảm 5 - 8 dB).
  • Tính đến khả năng mở rộng: Dự tính số nhân sự sau 3 - 5 năm và thiết kế dự phòng ít nhất 20% diện tích, ưu tiên nội thất modular (dễ tháo lắp, tái cấu hình). Bên cạnh đó, hệ thống điện và mạng nên có điểm dự phòng cho từng 5m².
  • Chọn đơn vị thiết kế uy tín: Kiểm tra hồ sơ năng lực dự án thực tế (yêu cầu hình ảnh trước/sau, không chỉ render 3D). Xác minh năng lực kỹ thuật về PCCC, điện, điều hòa. Sau khi tìm được đối tác, cần ký hợp đồng rõ ràng về phạm vi thiết kế, số lần chỉnh sửa và điều khoản phát sinh.
  • Giám sát thi công chặt chẽ: Không ủy thác hoàn toàn cho nhà thầu, yêu cầu kiến trúc sư có mặt tại công trường tối thiểu 2 lần/tuần. Trong quá trình xây dựng, cần chụp ảnh nhật ký công trình hàng ngày và so sánh với bản vẽ kỹ thuật để xử lý phát sinh ngay lập tức, không để tích lũy thành vấn đề lớn.
Tận dụng ánh sáng tự nhiên và cây xanh là xu hướng quan trọng trong thiết kế văn phòng hiện đại.
Tận dụng ánh sáng tự nhiên và cây xanh là xu hướng quan trọng trong thiết kế văn phòng hiện đại.

4. Các câu hỏi thường gặp về quy trình thiết kế nội thất văn phòng

Trong quá trình triển khai dự án, chủ đầu tư thường có rất nhiều thắc mắc liên quan đến chi phí, thời gian và khả năng điều chỉnh thiết kế. Dưới đây là những câu hỏi phổ biến nhất:

4.1. Chi phí thiết kế nội thất văn phòng được tính như thế nào?

Chi phí thiết kế nội thất văn phòng tại Việt Nam hiện được tính theo 3 phương pháp phổ biến:

  • Tính theo diện tích (phổ biến nhất): Dao động từ 100.000 - 500.000 VNĐ/m² tùy quy mô và độ phức tạp. Văn phòng 100m² với phong cách hiện đại: khoảng 15 - 30 triệu đồng phí thiết kế.
  • Tính theo % giá trị thi công: Thường từ 8 - 15% tổng giá trị hợp đồng thi công. Tổng thi công 2 tỷ thì phí thiết kế dao động 160 - 300 triệu đồng.
  • Gói thiết kế + thi công trọn gói: Phí thiết kế được tích hợp vào hợp đồng thi công, chủ đầu tư không mất thêm phí thiết kế riêng.

Lưu ý: Hãy yêu cầu báo giá chi tiết theo từng hạng mục, không chấp nhận báo giá gộp chung. Phí thiết kế rẻ chưa chắc có lợi, đơn vị uy tín thường báo giá đủ và minh bạch hơn.

4.2. Thời gian hoàn thành một bản thiết kế văn phòng là bao lâu?

Thời gian hoàn thành thiết kế phụ thuộc vào 3 yếu tố chính: diện tích, mức độ phức tạp và tốc độ phản hồi của chủ đầu tư. Khung thời gian tham khảo theo từng giai đoạn:

  • Bước 1 - 2 (Tiếp nhận + Khảo sát): 1 - 3 ngày làm việc.
  • Bước 3 (Concept Design): 3 - 5 ngày làm việc.
  • Bước 4 (Mặt bằng 2D): 5 - 10 ngày làm việc.
  • Bước 5 (Phối cảnh 3D): 10 - 20 ngày làm việc (tùy số lượng phòng và độ chi tiết).
  • Bước 6 (Hồ sơ kỹ thuật): 7 - 15 ngày làm việc.
  • Bước 7 (Bàn giao): 1 - 3 ngày làm việc.

Tổng thời gian thiết kế: Thông thường từ 30 - 60 ngày làm việc cho văn phòng 100 - 300m². Dự án phức tạp (> 500m², nhiều phòng ban, yêu cầu cao về custom) có thể cần 2 - 4 tháng.

Lưu ý: Yếu tố kéo dài thời gian nhất không phải đơn vị thiết kế, mà là tốc độ quyết định và phản hồi của chủ đầu tư. Chuẩn bị sẵn người ra quyết định trong từng buổi duyệt thiết kế.

4.3. Có thể thay đổi thiết kế sau khi đã chốt phương án 3D không?

Về mặt kỹ thuật: CÓ. Nhưng về mặt chi phí và tiến độ: CẦN CÂN NHẮC KỸ. Ví dụ, thay đổi sau khi đã thi công có thể tốn gấp 5 - 10 lần so với thay đổi trên bản vẽ. Vì vậy, bạn hãy dành thời gian duyệt kỹ ở bước Concept và 3D trước khi chốt.

Hiểu rõ quy trình thiết kế nội thất văn phòng là bước đệm vững chắc giúp các doanh nghiệp kiến tạo nên một không gian làm việc lý tưởng, tối ưu chi phí và hạn chế rủi ro. Một quy trình chuyên nghiệp không chỉ tạo ra vẻ đẹp thẩm mỹ mà còn mang lại giá trị công năng đích thực, góp phần thúc đẩy sự phát triển bền vững của doanh nghiệp.

Sau khi nắm vững quy trình thiết kế nội thất văn phòng tiêu chuẩn, việc lựa chọn một đơn vị cung cấp sản phẩm nội thất uy tín là bước then chốt để hiện thực hóa bản vẽ. Nội thất The One chính là đối tác tin cậy mang đến những hệ thống bàn ghế, tủ kệ đồng bộ, đáp ứng trọn vẹn mọi quy chuẩn khắt khe nhất.

Mọi thông tin chi tiết về sản phẩm, vui lòng liên hệ:

  • Website CHÍNH THỨC VÀ DUY NHẤT của Nội thất The One - tiền thân là Nội thất Hòa Phát: https://noithattheone.vn/
  • Trụ sở chính: Đường B4, Khu B, KCN Phố Nối A, Xã Như Quỳnh, Tỉnh Hưng Yên
  • Văn phòng Đại diện: Tầng 10, Capital Tower, 109 Trần Hưng Đạo, Phường Cửa Nam, Hà Nội
  • Hotline: 024 3555 8888
  • Hệ thống phân phối: Xem chi tiết
 

Bình luận

Mail
Chat với chúng tôi
Về đầu trang